海淀西三旗,金隅智荟中心,独栋写字楼出售!
发布时间:2026-01-19
# 北京金隅智荟中心:中关村西三旗科技园的产城融合新标杆
金隅智荟中心可售楼宇-T10、T11、T12号楼
【楼宇基本信息】
• T10号楼单栋建筑面积:约2.23万㎡
标准层面积:约1781㎡
层数:地上13层/地下3层
• T11号楼单栋建筑面积:25296.1㎡
标准层面积:约2530㎡
层数:地上10层/地下3层
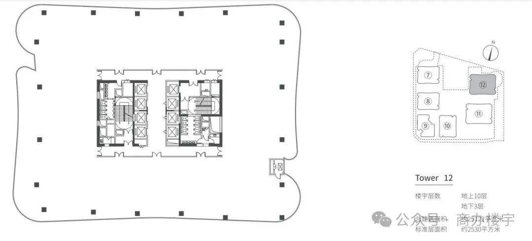
• T12号楼单栋建筑面积:25146.21㎡
标准层面积:约2530㎡
层数:地上10层/地下3层具体参数】
• 层高:4.2米
• 电梯:T10号楼:8部迅达客梯,梯速2.5m/s,2部转换梯直达车库,1部货梯;T11/T12号楼:7部迅达客梯,梯速2.5m/s,2部转换梯直达车库,1部货梯
• 玻璃幕墙:三层Low-E中空超白玻,配有隐藏式平开窗
• 空调系统:约克四管制风机盘管+新风,每层预留VRV空调机位
• 新风量:50m³/人/小时+PM2.5过滤
• 承重:250KG/㎡
• 车位数量:约2800个
• 交付标准:毛坯
欢迎来电咨询:13811119290



> 坐落于海淀中关村北扩核心区,金隅智荟中心以41万㎡建筑体量和12栋国际标准写字楼,打造高精尖产业聚集的“垂直硅谷”。
在北京市海淀区西三旗核心区域,一座总建筑面积约41万平方米的智慧型科技产业综合体——金隅智荟中心,正以其卓越的区位优势和完善的产业生态,成为中关村科学城北扩战略的重要支点。作为北京金隅集团与海淀区政府共同打造的重点项目,这一融合“研发办公、创新孵化、商业配套”功能的科技园区,凭借其世界级的硬件配置和前瞻性的产业规划,吸引了众多高精尖企业入驻,成为京北地区产业升级的典范之作。
## 1 区位优势与战略定位
金隅智荟中心坐落于北京市海淀区建材城中路(亦称建枫路),地处中关村西三旗核心区域,是连接中关村科学城与未来科学城的战略节点。项目东接京藏高速,西临建材城西路,南靠北五环,北近北清路,形成了四通八达的路网体系。
这一区域享受中关村国家自主创新示范区与北京“四个中心”建设的双重政策红利,是海淀区落实非首都功能疏解、推动高精尖经济结构构建的重要载体。项目作为金隅科技园的核心组成部分,与南侧金隅智造工场协同联动,共同打造总面积近70万平方米的产业生态圈,形成了“前店后厂”的发展模式。
交通便利性是项目的一大亮点。距离地铁8号线育新站约1公里,地铁13号线霍营站约1.8公里,园区提供免费接驳班车实现“最后一公里”无缝连接。驾车出行也十分便捷,可通过京藏高速、京承高速等城市主干道快速连通全城,20分钟车程可达中关村核心区,40分钟直达首都机场。
## 2 建筑设计与人本空间
金隅智荟中心由12栋国际化高品质写字楼组成,总建筑面积41万平方米(地上约23.66万㎡,地下约17万㎡),由世界著名设计公司凯达环球担纲规划设计。项目外立面设计灵感来源于 “古书竹简” ,将中国传统文化与现代建筑美学完美融合。
建筑设计上,项目采用框架剪力墙结构,标准层高4.2米,净高2.85米,柱距8-12米,创造了开阔舒适的办公环境。玻璃幕墙采用三层Low-E中空超白玻璃,配隐藏式平开窗,既保证采光效果,又满足绿色建筑标准。
空间规划方面,单栋建筑面积从2万至3.8万平方米不等,标准层面积约2500-3500平方米,使用率达到70-75%。这种灵活的空间设计可满足不同规模企业的需求,从初创团队到大型企业总部都能找到合适的办公空间。园区还特别规划了中央公园和下沉式广场,将绿化率提升至33%,打造花园式办公环境。
## 3 硬件配置与智能系统
金隅智荟中心在硬件配置上达到了国际甲级写字楼标准。垂直交通系统配置先进,共配备117部瑞士迅达高速电梯,梯速达2.5米/秒,实行高低区智能运行模式,有效保障了垂直交通效率。
空调系统采用约克四管制风机盘管+新风系统,每层预留VRV空调机位,供应时间为8:00-22:00(含周末)。新风量达到50立方米/人/小时,并配备PM2.5过滤装置,确保室内空气质量优良。
智能系统是项目的一大亮点,集成楼宇自控、安防自动化、消防自动化等多项功能。项目还引入 “I-立方”智慧平台,实现智慧服务、通勤及楼宇管理的全面智能化,为企业提供全方位、高品质的服务支持。
电力系统采用双路供电,配备110KV变电站,电量配置为100W/㎡,楼板承重达250kg/㎡,满足高科技企业的特殊需求。网络系统支持联通、电信、移动多运营商接入,确保通信畅通无阻。
## 4 产业生态与服务体系
金隅智荟中心已形成高质量的产业生态圈。项目聚焦 “1+6+1”产业定位,以智能制造为核心,辐射人工智能、工业互联网、智能硬件、未来汽车、新能源、高端装备制造六大前沿领域,构建完整的创新产业链。
截至2025年,园区已吸引纬创软件、清微智能、飞马机器人等众多高精尖企业入驻。特别是2024年,园区成功举办 “隅翼杯”创新创业大赛,吸引了超百家科技企业参与,进一步提升了产业的集聚效应。
配套服务完善是项目的一大特色。园区自带3万平方米商业空间,引进餐饮、零售、健身等多元业态。同时,项目周边有西三旗万象汇(13万㎡购物中心)、梧桐苑人才公寓、人大附幼儿园、海淀医院北部院区等完善的生活配套设施,实现了真正的产城融合。
产业服务体系完善,园区提供创业孵化、科技金融、检验检测认证等全链条服务。北京市中小企业公共服务平台、知识产权工作站等机构的入驻,为企业提供政策对接、专利服务等全方位支持。
## 5 绿色建筑与可持续发展
金隅智荟中心在绿色环保方面表现突出,已获得LEED金级认证和WELL金级认证,体现了其在绿色建筑和健康办公环境方面的卓越表现。
项目秉承 “融入自然,和谐共生” 的绿色理念,通过下沉式广场、地上景观和中央公园的有机结合,将地面的绿色引入地下,营造绿意环抱、鲜氧萦绕的低密度生态园区环境。这种设计使园区绿化率高达33%,远超北京市平均水平。
节能技术应用广泛,项目采用多项先进节能设备,有效降低建筑能耗。特别是隐藏式平开窗设计和PM2.5过滤系统的运用,既保证了室内空气质量,又实现了节能目标,彰显了绿色建筑理念。
## 6 投资价值与发展前景
根据2025年市场数据,金隅智荟中心的资产价值持续攀升。项目停车位月租金为固定车位700元/月、非固定车位500元/月,在同类项目中具有较强竞争力。
资产增值潜力方面,随着海淀区“北京国际科技创新中心核心区”建设的深入推进,金隅智荟中心这类兼具稀缺区位与产业生态的科创园区具有稳定的保值增值能力。项目所在的海淀北部被定位为北京国际科技创新中心核心区,未来将持续承接数字经济、前沿技术产业,发展前景广阔。
未来,金隅智荟中心将继续聚焦人工智能、智能制造、新能源等前沿领域,为海淀区高精尖企业提供全新的创新发展平台。随着海淀区“十四五”规划的深入实施,这一区域有望成为北京乃至全国重要的科技创新策源地。
---
金隅智荟中心凭借其中关村西三旗核心区位、世界级硬件配置、完善的产业生态和绿色可持续发展理念,在北京科创园区市场中形成了独特的竞争优势。对于追求产业协同、注重创新环境的高科技企业来说,这里无疑是理想的选择。
随着北京国际科技创新中心建设的不断推进,金隅智荟中心这一融合“研发办公+创新孵化+商业配套”功能的科技产业综合体,将继续为入驻企业创造价值,成为京北地区产业升级的新引擎。建议有意向的企业实地考察这一中关村科学城北扩战略的标杆项目,亲身体验其卓越的创新环境与办公品质。