北京中建二局大厦一白纸坊独栋,开发商自持出租,独栋写字楼出租,独栋物业出租,建二局大厦为甲级智能型写字楼,独栋办公室出租,分为主楼和附楼两部分,主楼地上23层,地下2层,附楼6层,总面积计2.8万平方米。商圈成熟,主楼外立面采用高档进口高级磁砖,配套齐全,中建二局大厦位于北京市宣武门广安门南街42号,具体位置为西南二环白纸坊桥畔(桥东南角150米,二环内),交通便利,步行地铁站,仅仅需要9分钟的时间!

项目名称:中建二局大厦,
所属区位:西二环内
所属商圈:白纸坊商圈
出租面积:6800平米出租单层面积:858.47,
使用率 :70%
租金报价:5.5元-7元/天/平米
欢迎来电咨询:13811119290
中建二局大厦一白纸坊独栋都有哪些企业入驻?
项目介绍
中建二局白纸坊大厦项目位于北京市西城区广安门南街42号,广安门南街以东、护城河以西、天缘公寓以南、福彩大厦以北。楼宇总建筑面积为17703.59 平方米 。地上部分为5-23 层,建筑面积为16310.93 平方米 ;地下部分为2 层,建筑面积为1392.66 平方米 。该办公楼建设高度79.9米,首层高度为5.2米,标准层高2.9米。楼内设全楼层电梯2 部、高区电梯1部,采用中央空调系统供冷供热,外墙为真实漆,院内设地上停车位共计80 个,立体车库一座,并配套有停车场智能出入系统。
该楼宇2001年建成并投入使用,2020年项目运营方中建二局商管公司公司启动改造升级,对外立面、窗户、卫生间及盥洗区、电梯、安防系统、消防系统、空调系统、公共区域等进行了改造。本次改造外立面选取了环保真石漆,增加保温板、使建筑节能降温、美观实用。窗户由原塑钢窗改为断桥铝窗,安全、抗老化、保温性与气密性较好且可降低热量传导、防止冷凝、降低噪音。电梯选取了进口日立高速电梯,大大加强了大厦运行能力。直燃机更换为最新进口节能环保直燃机,有效降低能源浪费。
2
基础信息
建筑面积:16310.93平米(5-23层)
单层面积:858.47平米
地上:租赁地上5—23层
地下:2层(可设食堂,有燃气接口)
电梯:3部
车位:80个
注册:可以
使用率:80%
地铁:陶然亭站,广安门站
3
项目区位图
4
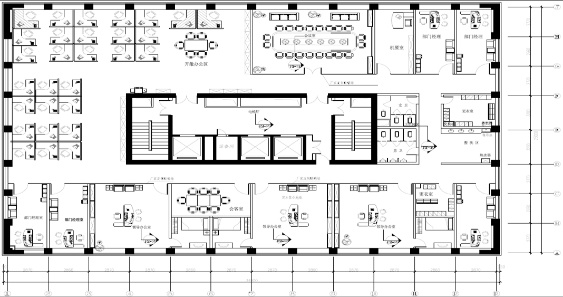
标准层平面图
5
外立面实景图
6
大堂实景图
7
室内实景图