东二环磁器口综合体,独栋物业出售,独栋综合体出售,该项目位于广渠门内大街,商圈成熟,交通便利,配套齐全,步行地铁站,仅仅需要8分钟的时间,距离长安街步行9分钟的时间,周边银行,商场,酒店,餐饮,娱乐配套非常齐全,非常适合做企业总部!

总建筑面积:26146平米,地上21001平米,地下5145平米
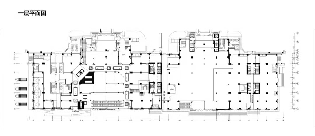
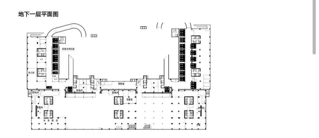
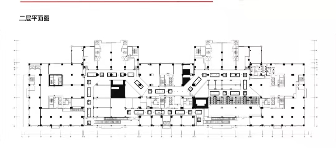
楼层信息:地下一层和地上三层,共四层商业空间
停车场:地下二层,地地铁7号线上盖;天安门、王府井近在咫尺,主干路四通八达,周边数十条公交线路快速通达各商圈。
上地下共有200余个停车位
交付状态:现状交付,有租户
出售价格:10亿
交付方式:股权交易
周边配套:有家乐福超市、中信银行、链家地产、国美电器、华夏自助银行等;养生堂药店、中信建投证券、宝岛眼镜、励步教育、儿童乐园、乐友孕婴童集合店、马博士游泳、天福茗茶、凯撒旅游、森达鞋店、玖玖合点寿司、周黑鸭、鲁西西、栗果园、冻酸奶、古早味、进口食品、柯达等配套
欢迎来电咨询:13811119290